
Un antiguo bar en el barrio de Hortaleza, una familia con niñas pequeñas y un deseo de refugio familiar en la ciudad. Los puntos de partida para un proyecto de estrecha colaboración con amigos.
Una construcción de los años 50 en el barrio de Hortaleza, abandonada y tapiada, daba cabida a un bar con jardín, para las cervezas de verano, y una vivienda para los dueños en la planta primera. Una parcela rectangular con un frente a calle de 10m y un fondo de 20m con una superficie edificada de unos 200m2.
Las premisas son claras, respetar la estructura de la construcción, desarrollar un programa de vivienda para una familia de 4, rehabilitar integrando la conciencia ecológica de la dueña de la casa y jugar con un presupuesto ajustado.
Respetamos la construcción, conscientes de la dificultad de trabajar con unos muros de carga y pilares de ladrillo macizo sin apoyos cimentados, con una cubierta de tabiques palomeros y sin protección activa contra la humedad. Aún así, toda la base necesaria para trabajar con esta ruina estaba allí. El espacio del bar nos regalaba un espacio prácticamente diáfano, habitable sin mucha dificultad, una conexión interior con la planta primera y fuentes generosas de iluminación y ventilación. La vieja parra nos daba la bienvenida en nuestra llegada desde la calle.

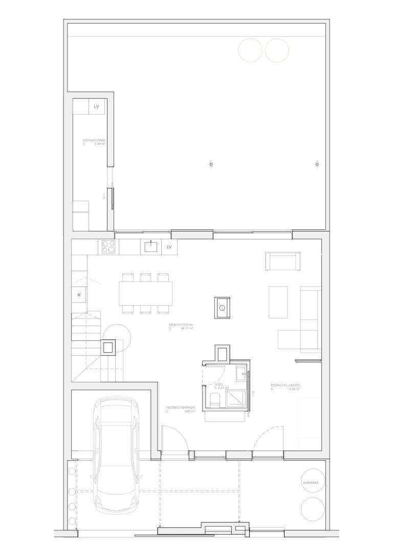
La planta baja se distribuye en un gran espacio social que aloja cocina, comedor y salón con salida al jardín trasero, y un espacio multi uso conectado al salón por unos paneles correderos, espacio utilizado como habitación de invitados y de zona de juego. Un volumen de madera aloja el aseo y cierra este último espacio. Madera de abedul que da respuesta a la calidez y la naturalidad de los materiales deseados. Madera que contrasta con el ladrillo macizo del pilar central de esta planta, el cuál dejamos expuesto. El ladrillo se descubre también en el muro medianero con el vecino, el que recoge la escalera y parte del muro que cierra a la calle. Como material para proteger el ladrillo y recuperarlo usamos un cemento de cal, amable con el medio ambiente proporcionando, como material natural, un interior seguro.

Seguridad y confort buscados, por lo que revestimos las fachadas con un sistema SATE, de aislamiento exterior con revoco orgánico libre de cementos. Las carpinterías son sustituidas por unas de aluminio con hoja oculta con vidrios de altas prestaciones tanto térmicas como de control solar. Nos ayudamos de un suelo radiante para calefactar y refrigerar con un sistema de aerotermia conectado a unos paneles fotovoltaicos en cubierta, para limitar el consumo de electricidad de la red. La producción de energía eléctrica para autoconsumo y la recuperación de un espacio verde tanto para jardín como para la creación de un huerto urbano han sido temas centrales que han condicionado el proyecto. Incorporamos un hogar en acero de leña cerrado centrado, separando la cocina-comedor del salón, que aporta una fuente de calor verde ayudando en los días más fríos.
Respetamos el hueco de la escalera existente para no tocar la estructura de los forjados. Esto nos predetermina la distribución de la planta primera, al tener su acceso por un lateral. Desarrollamos un espacio de trabajo en torno al desembarco de la escalera de gran luminosidad al respetar dos ventanas existentes, de diferentes tamaños, que nos sirve de nexo de distribución hacia las habitaciones. Una principal con un baño incorporado y dos habitaciones unidas con su baño.
La escalera en su inicio abraza en forma maciza un pilar existente de planta baja para pasar a una estructura ligera de chapa de acero doblada apoyada en el muro de carga y colgada de redondos metálicos que hacen a su vez de barandilla.

Uno de los problemas con los que nos encontramos fue la altura libre de la planta primera que se acercaba a los 2,50m pero que consideramos insuficiente, tras la instalación del suelo radiante con su aislamiento, para conseguir estancias voluminosas deseadas. Al ser la cubierta una estructura de tabiques palomeros y no querer invertir demasiada parte del presupuesto en esto, apostamos por la solución de abrir una serie de huecos perforando algunas bovedillas del forjado de cubierta, a modo de bóvedas rectas. Esto ha porporcioando a las estancias de descanso, espacio, luminosidad, aire y un juego poético de colores que impregnan a éstas. Estas bóvedas se pintan de diferentes colores y alojan la iluminación artificial necesaria.

Conseguimos que la parra de la entrada sobreviviese el trasiego de la obra, protegida hasta la sustitución de la estructura tubular oxidada por una estructura galvanizada lacada de tubos redondos, perfilería en T y cables de acero. Esta parra protege la vivienda del sol de tarde creando un clima más favorable para la ventilación cruzada de la planta baja y existente en las dos plantas. Ventilación crucial en nuestro intento de eliminar la necesidad del aire acondicionado junto con la intervención general de aislamiento térmico de la envolvente.
El bar tiene un nuevo uso y sus habitantes seguirán con las cervecitas en el jardín trasero…..

Me encanta, gran trabajo Sonia!!!
Gracias, nos ha costado mucho termianarla pero por fin se han mudado !!!